
铸钢气动法兰球阀Q641F-40C
气动球阀是由阀门气动执行器和球阀本体组成。我司采用新型系列GT型、AT型或AW型气动执行器(原则上,DN200以下口径用AT或GT型执行器,DN200以上口径运用AW型气动执行器),气动执行器按功能可分为有双作用式气动执行器和单作用式气动执行器(弹簧复位),按齿轮传动,安全可靠。 大口径阀门采用系列AW型气动执行器拔叉式传动,结构合理,输出扭矩大,有双作用式和单作用式。
1、先进的阀座:聚多年球阀制造经验而设计的阀座,确保阀门密封,磨擦系数低,操作力矩小、多种阀座材料、适应范围广。
2、开关无误的手柄:采用扁头阀杆,与手柄的连接不会错位,从而保证手柄指示的开关状态与阀一致辞。
3、锁紧装置:为防止阀门开关误操作,在阀门全开、全关位置有锁定孔,确保阀门处于正确的位置。
4、阀杆防飞结构:阀杆为下装式,防止受压飞出,同时可在火灾后,与阀体形成金属接触,确保阀杆密封。
技术范围:
|
阀体
|
|
ZG1Cr18Ni9Ti
|
CF8
|
CF3
|
ZG1Cr18Ni12Mo2Ti
|
CF8M
|
CF3M
|
|
球体阀杆
|
|
1Cr18Ni9Ti
|
304
|
304L
|
1Cr18Ni12Mo2Ti
|
316
|
316L
|
|
阀座
|
聚四氟乙烯PTFE 加坡纤增强聚四氟乙烯PTFE+Glass 对位聚笨PPL
|
|
垫片
|
聚四氟乙烯PTFE 不锈钢/柔性石墨
|
|
阀杆座
|
聚四氟乙烯PTFE 不锈钢/柔性石墨
|
|
填料
|
聚四氟乙烯PTFE 增强柔性石墨
|
|
填料压盖
|
|
1Cr18Ni9Ti
|
304
|
304L
|
1Cr18Ni12Mo2Ti
|
316
|
316L
|
|
温度
|
-29~150(聚四氟乙烯 PTFE) -29~200(加玻纤增强聚四氟乙烯 PTFE+GLASS) -29~300(对位聚笨 PPL)
|
|
介质
|
水蒸汽油品
|
硝酸类
|
强氧化介质
|
醋酸类
|
尿素类
|
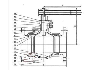
主要零件材质:

|
序号
NO
|
零件名称
|
材质
|
|
GB
|
ASTM
|
|
1
|
阀体
|
WCB
|
A2116-WCB
|
|
2
|
密封圈
|
PTFE、RPP
|
PTFE、RPP
|
|
3
|
球体
|
1C18Ni9Ti
|
SS304
|
|
4
|
螺母
|
35
|
A194-2H
|
|
5
|
螺柱
|
35CrMoA
|
A193-B7
|
|
6
|
石体
|
WCB
|
A216-WCB
|
|
7
|
垫片
|
柔性石墨+不锈钢
|
B12.10-304F/.G
|
|
8
|
填料
|
PTFE
|
PTFE
|
|
9
|
填料压盖
|
WCB
|
A2116-WCB
|
|
10
|
定位片
|
25
|
A105
|
|
11
|
挡圈
|
65Mn
|
AISI 1066
|
|
12
|
手柄
|
K33
|
A47-667
Gr.32510
|
|
13
|
阀杆
|
1Cr33
|
A276-410
|
|
14
|
螺钉
|
35
|
A193-B7
|
|
15
|
止推垫片
|
PTFE
|
PTFE
|